Ricerca rapida
Tipologia
Categoria
Città
Zona
Cerca
Codice
Prezzo (da - a)
-
Mq (da - a)
-
Ordine

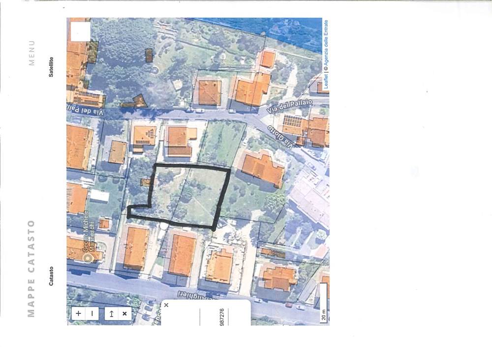
V000661 - Capolona paese vendesi terreno edificabile

Terreno Edificabile

Capolona paese proponiamo in vendita un lotto di terreno edificabile posto all'interno di un area residenziale con ottima viabilità di accesso. Il lotto di terreno è situato vicino alla stazione ferroviaria e vicino a tutte le attività principali. Ottima occasione per impresari edili per la costruzione di appartamenti, ma anche adatto a privati per costruire casa singola o bifamiliare.
Mq edificabili del lotto 836
mc edificabili 2259
Prezzo
150.000 EUR
Mq
1056
Classe
NC
Locali
1
Cookie preference